Cottages and Farmhouses for sale via dei Casali snc, Forano, locality Forano (Italy)

Lazio Rieti Forano Forano (Italy) Ref. CUC-240
    Via dei Casali snc
+

Cottages with land in the center of Forano (Ri)

Price
€ 45.000
Type
Sale
Category
Cottages and Farmhouses
Destination
Residential
Region
Lazio
City
Rieti
Town
Forano
Locality
Forano (Italy)
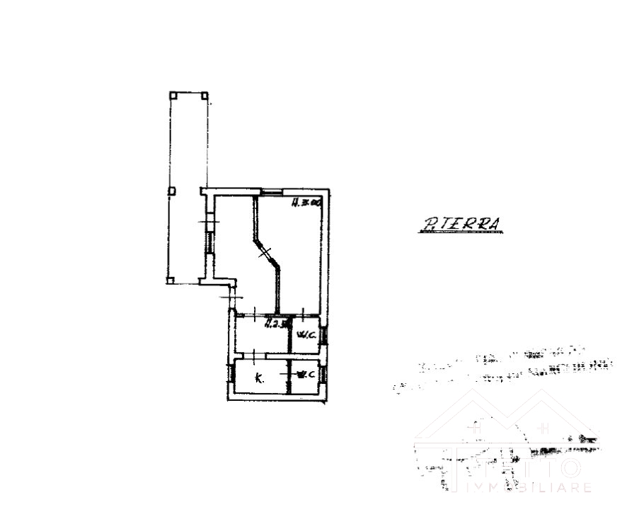
Area
97 sqm
Rooms
3
Bedrooms
2
Bathrooms
2

Ideal for investment, residence or rural regeneration project

In the heart of the town of Forano we offer for sale an interesting real estate compendium consisting of two residential buildings and a warehouse, insisting on a plot of about 2,350 square meters.
The location, adjacent to the town, offers the convenience of services combined with the tranquility and authenticity of a rural context.

The buildings, which need to be completely restored, are regularly registered as residential, thus guaranteeing an important building potential and enhancement compared to the classic rustic houses in the countryside.

The first house is spread over a single level of about 63 square meters, with a porch and three main rooms.

The second unit measures about 34 square meters, consisting of two and a half rooms.

The property includes a warehouse ideal as a tool shed or appurtenant storage.

An in-depth feasibility study is available to potential buyers, useful for understanding the real potential for investment and recovery of the property.

A unique opportunity that encompasses independence, typicality, character and comfort.

Contact us for more information or to schedule a no-obligation visit.

Energy Class: N.C.

Features

Conditions: Be Restored
Heating: Non-Existent
Parking: External Parking space
Garden Sqm: 2350 Private
Floor: Piano Terra - plans building: 1
Kitchen: Kitchenette
Furnished: Not Furnished
Terrace: No
Balcony: No
Year Built: 1960
Air conditioner: Assente

Photos

Cottages with land in the center of Forano (Ri) - 1
Cottages with land in the center of Forano (Ri) - 2
Cottages with land in the center of Forano (Ri) - 3
Cottages with land in the center of Forano (Ri) - 4
Cottages with land in the center of Forano (Ri) - 5
Cottages with land in the center of Forano (Ri) - 6
Cottages with land in the center of Forano (Ri) - 7
Cottages with land in the center of Forano (Ri) - 8
Cottages with land in the center of Forano (Ri) - 9
Cottages with land in the center of Forano (Ri) - 10
Cottages with land in the center of Forano (Ri) - 11
Cottages with land in the center of Forano (Ri) - 12
Cottages with land in the center of Forano (Ri) - 13
Cottages with land in the center of Forano (Ri) - 14
Cottages with land in the center of Forano (Ri) - 15
Cottages with land in the center of Forano (Ri) - 16
Cottages with land in the center of Forano (Ri) - 17
Cottages with land in the center of Forano (Ri) - 18
Cottages with land in the center of Forano (Ri) - 19
Cottages with land in the center of Forano (Ri) - 20
Cottages with land in the center of Forano (Ri) - 21
Cottages with land in the center of Forano (Ri) - 22
Cottages with land in the center of Forano (Ri) - 23
Cottages with land in the center of Forano (Ri) - 24
Cottages with land in the center of Forano (Ri) - 25
Cottages with land in the center of Forano (Ri) - 26
Cottages with land in the center of Forano (Ri) - 27
Cottages with land in the center of Forano (Ri) - 28
Cottages with land in the center of Forano (Ri) - 29
Cottages with land in the center of Forano (Ri) - 30
Cottages with land in the center of Forano (Ri) - 31
Cottages with land in the center of Forano (Ri) - 32
Cottages with land in the center of Forano (Ri) - 33
Cottages with land in the center of Forano (Ri) - 34

Floor Plans

Cottages with land in the center of Forano (Ri) - 1
Cottages with land in the center of Forano (Ri) - 2

Video

Map

Welcome! Click on one of our assistants to send a message, they will reply as soon as possible.

Chat via WhatsApp